Year: 2012 Language: english Author: HWASEUNG R&A (Wilson Walton Korea) Genre: Manual Format: PDF Quality: eBook Pages count: 65 Description: This is one of the oldest techniques of corrosion protection of steel in a corrosive environment, such as water or soils. Cathodic protection has been applied very successfully to the protection of pipelines, storage tanks and underground structures in petroleum and oil industries. Cathodic protection has been widely applied for the protection of concrete structures. Impressed current systems – These systems are applicable to the protection of the immersed external hull only. The principle of the systems is that a voltage difference is maintained between the hull and fitted anodes, which will protect the hull against corrosion, but not overprotect it thus wasting current. For normal operating conditions the potential difference is maintained by means of an externally mounted silver/silver chloride reference cell detecting the voltage difference between itself and the hull. An amplifier controller is used to amplify the micro-range reference cell current, and it compares this with the preset protective potential value which is to be maintained. Using the amplified DC signal from the controller a saturable reactor controls a larger current from the ship's electrical system which is supplied to the hull anodes. An AC current from the electrical system would be rectified before distribution to the anodes.
You cannot post new topics in this forum You cannot reply to topics in this forum You cannot edit your posts in this forum You cannot delete your posts in this forum You cannot vote in polls in this forum You cannot attach files in this forum You cannot download files in this forum
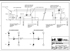
Impress Current Cathodic Protection System Manual
Language: english
Author: HWASEUNG R&A (Wilson Walton Korea)
Genre: Manual
Format: PDF
Quality: eBook
Pages count: 65
Description: This is one of the oldest techniques of corrosion protection of steel in a corrosive environment, such as water or soils. Cathodic protection has been applied very successfully to the protection of pipelines, storage tanks and underground structures in petroleum and oil industries. Cathodic protection has been widely applied for the protection of concrete structures.
Impressed current systems – These systems are applicable to the protection of the immersed external hull only. The principle of the systems is that a voltage difference is maintained between the hull and fitted anodes, which will protect the hull against corrosion, but not overprotect it thus wasting current. For normal operating conditions the potential difference is maintained by means of an externally mounted silver/silver chloride reference cell detecting the voltage difference between itself and the hull. An amplifier controller is used to amplify the micro-range reference cell current, and it compares this with the preset protective potential value which is to be maintained. Using the amplified DC signal from the controller a saturable reactor controls a larger current from the ship's electrical system which is supplied to the hull anodes. An AC current from the electrical system would be rectified before distribution to the anodes.
Contents
Screenshots
ICCP manual.pdf
Download [2 KB]
Share