Year: 2007 Language: english Author: MacGREGOR Genre: INSTRUCTION MANUAL Publisher: MacGREGOR Format: PDF Quality: OCR without errors Number of pages: 366+370 Description: Manual No. (9012-9014); CD (1 pc) Certificate for crane issued by: GL Certificate for foundation issued by: GL IMO No. L9102497 Name of ship USSY SCHULTE Newbuilding No. NB 170/1/3 Shipyard Stettin Owners MS "USSY SCHULTE" Schiffsbetr Project No. 230.4107-1 Mfg. No. 62503432 - Crane 1 Type of crane GL 4524/4028-2S Mech. spec 489 4113/E Hydr. spec 489 4112/D-Preface This instruction manual covers the MacGREGOR Spare parts hydraulic deck crane. We hope that it will prove a General advice how to order spare parts; spare parts valuable companion to everyone concerned with the lists and illustrations, operation of the crane or otherwise in a responsible position. Every manual belongs to a specific crane or piece of equipment. The identification can be found on the label on the manual’s back. The manual contains nine sections. The various sections cover the following subjects: General Contents list; Safety; Conversion tables; Hydraulic and electric symbols. Technical description Technical data; description of crane design. Function Electric and hydraulic functions of the crane. Operation Operating instructions; crane operator’s checklist. Maintenance Lubricating chart and maintenance instructions. Service General service instructions for the hydraulic system, mechanical, control system and electrical equipment. Extra equipment Extra equipment, if any; e.g. cargo handling equipment. Appendices Other information, which cannot be referred to any of the above mentioned sections. The Original Manufacturer of HAGGLUNDS Cranes MacGREGOR
General Instructions Cleanliness in Hydraulic Systems
General Instructions Cleanliness in Hydraulic Systems The fundamental and foremost rule in all work with hydraulic systems and components is absolute cleanliness. Many components, e.g. valves and pumps, have very narrow tolerances, therefore microscopic impurities, invisible to the human eye, may have disastrous effect on the function of a hydraulic system. The hydraulic system installation contains a cleaner with a cartridge designed to stop impurities produced within the hydraulic system during operation. Every care must be taken to prevent external impurities from entering the system when servicing or repairing it. This also applies for components that have been removed and or to be reinstalled. Sooner or later, a component that has been replaced will be inspected in a test equipment somewhere. It is important that the component stays in the same condition as it was when it was removed, as it may otherwise be impossible to decide the real cause of a malfunction. It may also be possible that a component sent in for inspection is not defective at all, and will be returned. Rules when working on the hydraulic system The following fast rules shall be observed during working on the hydraulic system: 1. Carry out a rough general clean-up. 2. Protect the area where work shall be done. Use a sheet of plastic material or similar. 3. Clean well with white spirit or a similar solvent. Remember that it is not enough to clean only the parts immediately concerned, but also their surroundings from where accumulated dirt may be transferred in to the repair area. Do not forget to clean the tools to be used. Use a brush for cleaning, wipe off with a non-linting rag, repeat the cleaning if necessary. Finish by spraying the area of operations - hose connections etc. - with the solvent. 4. Mount protective covers immediately after removing a component, a pipe or a hose. Components, shall also be fitted with covers and plugs in order to prevent ingress of dirt. These covers must be kept in clean and closed packages. After use, covers are to be cleaned in the workshop. 5. Observe minute cleanliness when handling all types of quick-release connectors. Spray both connectors with solvent before making up a connection. Clean all covers before reinstallation. Storing and filling up of hydraulic oil 1. Store barrels, hoses and pump as clean as possible and best of all in a warm room. The oil viscosity will then be considerably lower, which make the filling through filter easier. 2. Barrels, hoses and pump must be carefully handled and cleaned when necessary. 3. Store barrels horizontally, so plugs (or cocks) are below the liquid level and impurities (e.g., damped air) does not penetrate the barrels. 4. Observe minute cleanliness when filling up oil -carelessness is one of the greatest sources when impurities penetrates the hydraulic system. 5. Fill up hydraulic oil. See separate instruction. 6. Never use the last drop in the barrel, as it often consists of water and other impurities dependent on how many times the barrel has been opened. The Original Manufacturer of HAGGLUNDS Cranes
TABLE OF CONTENTS
GENERAL 1 1.005 E e PREFACE 1.009 E a GENERAL INSTRUCTIONS, CLEANLINESS IN HYDRAULIC SYSTEMS 1.102 E c CONVERSION FACTORS 1.518.1 SvED f HYDRAULIC AND ELECTRIC SYMBOLS TECHN. DESCRIP. 2 230.4107 - TECHNICAL DATA 2.007.16 E a TECHNICAL DESCRIPTION FUNCTION 3 3.110.34 E - HYDRAULIC FUNCTION 3.126.3 E b STARTING, STOPPING, SAFETY FUNCTIONS SINGLE CRANES 3.136.12 E - STARTING AND STOPPING SEQUENCE 3.142.1 E b CRANE CONTROL SYSTEM OPERATION 4 PM40 1830-E b CREW CHECKLIST, BEFORE TAKING CRANE INTO OPERATION PM40 1817-E - LOAD INDICATION PM40 5500-E00 b OPERATING INSTRUCTION PM40 6050-E00 b OPERATING INSTRUCTION PM41 0011-E a EMERGENCY ESCAPE INSTRUCTIONS 4.620.1 E n PARKING THE CRANE, SEA STOWING, GENERAL INSTRUCTION 388 7888 - JIB PARKING IN WIRE ROPES (DIM. DRAWING) 4.630 E - HANDLING HATCHES BY DECK CRANE MAINTENANCE 5 5.005.19 E c MAINTENANCE CHART 5.018 E b INSPECTION OF STRESSED COMPONENTS AND STRUCTURES PM51 1355-E00 b LUBRICATING CHART 5.301.7 E a FILTERS 5.302.12 E b HYDRAULIC OIL TANK 5.315 E a SAMPLING OF OIL TO VERIFY THE CLEANLINESS IN HYDRAULIC SYSTEM The Original Manufacturer of HAGGLUNDS Cranes MacGREGOR INSTRUCTION MANUAL Project No. Dept. C7250 Date: 2007-06-05 230.4107-1 TABLE OF CONTENTS Page 2(4) INSTRUCTION NO. REV NAME OF INSTRUCTION MAINTENANCE 5 SERVICE 6 6.0 6.1 6.2 6.3 EXTRA EQUIPMENT 7 APPENDICES 8 SPARE PARTS 9 5.421.13 E 6.000 E 6.000.1 E 6.003.1 E 6.004.1 E 6.005.1 E 6.100 E 6.106 E 6.117 E 6.120.15 E 6.120.51 E 6.121 E 6.122.1 E 6.125.13 E 6.127.19 E 6.189 E 6.203.4 E 6.203.9 E 6.214 E 6.216.26 E 6.222 E 6.223 E 6.303.3 E 625/1461 E 6.305.1 E 6.307.4 E 6.311.1 E 6.320.91 E 6.321.2 E 6.990.22 E 6.990.23 E LUBRICANTS FOR DECK MACHINERY c HOWTO ORDER SPARE PARTS c STATEMENT REGARDING DELIVERY OF SPARE PARTS TO SWIVELS, LIFTING 1 m GLOBAL SERVICE az MacGREGOR GLOBAL SERVICES c INTRODUCTION b MEASURES BEFORE STARTING, DURING AND AFTER COMPLETED SERVICE/IV a TROUBLE SHOOTING CHART, OVERHEATING b TROUBLE SHOOTING, PUMPS d SLEWING GEARSET b HYDRAULIC MOTOR TROUBLE-SHOOTING CHART, HYDRAULIC MOTORS e HYDRAULIC MOTORS, SERIES 63, 64 AND 84 a FEED PUMP UNIT b HIGH PRESSURE PUMPS f HYDRAULIC PISTON ACCUMULATORS d BRAKES FOR WINCHES WITH LOW-SPEED HYDRAULIC MOTORS SERIES 63 M c BRAKES FOR WINCHES WITH LOW-SPEED HYDRAULIC MOTORS SERIES 84 i TIGHTENING TORQUES STUDS/SCREWS AND BOLTS c ROPE REEVING DIAGRAM FOR CRANES TYPE G-2 AND GL-2 a HANDLING AND CHECKING STEEL WIRE ROPES d REPLACEMENT OF WIRES, 1- OR 2-ROPE CRANES ELECTRONIC TROUBLE SHOOTING f EMERGENCY OPERATION BOARDS b ELECTRICAL EQUIPMENT, GENERAL MAINTENANCE d SLIP-RING UNIT, REMOVAL AND INSTALLATION, SINGLE a OIL LEVEL FLOAT SWITCH AND OVERHEATING PROTECTOR LIMIT SWITCHES IN HOISTING AND LUFFING WINCH SYSTEMS a SLACK WIRE SAFETY SWITCH HOISTING AND LUFFING WINCHES b EMERGENCY BRAKE RELEASE IN CASE OF MAIN PUMP UNIT FAILURE d EMERGENCY BRAKE RELEASE IN CASE OF COMPLETE POWER FAILURE, .. SEE SEPARATE TABLE OF CONTENTS The Original Manufacturer of HAGGLUNDS Cranes MacGREGOR PARTS MANUAL Project No. Dept. C7250 Date: 2007-06-05 230.4107-1 TABLE OF CONTENTS Page 3(4) GROUP DESCRIPTION PART NUMBER FIG 9 HOWTO ORDER SPARE PARTS c 6.000 E HOISTING WINCH, C 388 5376-801 D / 625-1096 HYDRAULIC MOTOR, SERIES 84 078 0040-803 M/F 625-1200D LUFFING WINCH, C 388 5377-801 D / 625-2201 HYDRAULIC MOTOR, SERIES 64 178 1322-401 FI 625-1242B SLEWING GEAR 287 9304-801 -1 625-3248D HYDRAULIC MOTOR 388 3127-801 HI 625-1203C BRAKE ASSEMBLY, C 178 0373-801 M/M 625-4130H BRAKE ASSEMBLY 178 1494-802 D/D 625-4133C BRAKE CYLINDER, C 178 1301-802 C/C 625-4348C BRAKE CYLINDER 388 1656-801 Cl 625-4492B PARKING LOCK 187 6032-801 DID 625-4489 PUMP UNIT 187 8020-801 C/C 625-5113A FEED PUMP UNIT 388 0364-801 H/H 625-5176C OIL COOLER 287 6954-801 D/D 625-5735G TANDEM ASSEMBLY KIT 388 5167-801 FI 625-4963B OIL TANK 187 7554-801 HI 625-5850D MECHANICAL EQUIPMENT 187 8340-801 C/C 625-5873 SLEWING RIM MOUNT 388 6579-801 -/ 388 6579 SLEWING RIM 287 9036-801 A/ 287 9036 SLEWING RIM YARD MOUNTING 388 5036-801 -/ 388 5036 SLACK WIRE SWITCH 287 7355-803 D/D 625-6214C SLACK WIRE SWITCH 287 8166-801 C/- 625-6213C LIMIT SWITCH 5661 4116-512 U- - LIMIT SWITCH 5661 4125-511 u- - CRANE JIB WITH BEARING 287 9959-801 N 625-6254 INCLINOMETER, C 388 0176-801 B/B 625-6509A CAB 287 9188-802 D/D 625-6523A LIFTING EQUIPMENT, C 388 7686-801 -/ 625-7007 WIRE ROPE, HOIST; SEE TECHNICAL DATA 389 0850-831 U- - WIRE ROPE, LUFFING; SEE TECHNICAL DATA 388 3261-824 XI - HYDRAULIC CIRCUIT DIAGRAM 187 8366 -IB 187 8366 HYDRAULIC TUBING, COOLER 388 1638-818 Y/EE 388 1638 UNLOADING UNIT 388 3576-801 B/B 625-7291C FLUSHING VALVE 388 3579-801 F/F 625-7287C BLOCK 187 5228-801 Ul 625-7294E MAGNETIC PLUG, C 488 7088-801 -1 625-7316A PRESSURE SWITCH, C 387 7053-806 Ul 625-7446A PRESSURE SWITCH, C 387 7053-801 K/K 625-7441B PRESSURE SWITCH, C 388 0359-801 B/B 625-7447 DIRECTION VALVE 287 5950-801 U 625-7508C DIRECTION VALVE 287 5949-801 HI 625-7509B FILTER ELEMENT 489 3104-001 A/ - FILTER UNIT INLET, C 187 7343-801 D/D 625-7312 FILTER UNIT OUTLET, C 187 7344-801 D/D 625-7313 The Original Manufacturer of HAGGLUNDS Cranes MacGREGOR PARTS MANUAL Date: 2007-06-05 Dept. C7250 Project No. 230.4107-1 TABLE OF CONTENTS Page 4(4) GROUP DESCRIPTION PART NUMBER FIG 9.4 ACCUMULATOR 388 0362-801 / 625-7951F HYDRAULIC HOSES 625-7970G 9.5 EL. BLOCK DIAGRAM 314 3221 -/ 314 3221 EL. CIRCUIT DIAGRAM 314 3222 -/ 314 3222 EL. COMPONENT LIST 414 5964 /- 414 5964 EL. CENTRAL 214 1615-801 -/- 214 1615 EL. INSTALLATION 114 1038-801 A/A 1141038 POWER SUPPLY CE,C 314 2114-802 GIG 625-8560A EL. INSTALLATION, CAB 114 1030-801 Cl 1141030 CONTROL PANEL 214 1212-801 B / 214 1212 CONTROLLER, HOISTING 314 2005-802 D / 625-8591C CONTROLLER, LUFFING/SLEWING 314 2006-802 D / 625-8592C EL. INST. CAB FORCE LIMIT 114 1037-802 -/ 1141037 CUBICLE B, ASSY 314 2669-813 N/N 314 2669 CUBICLE B 214 1359-802 E/E 625-8011 FRAME CUBICLE B 214 1224-803 -IB 625-8012 CUBICLE A 214 1616-801 -/- 214 1616 COMPL. CUBICLE A 314 3161-801 -/ 3143161 LIMIT SWITCH BOX, MOUNTING 388 3380-801 -/- 625-7020.001 LIMIT SWITCHES BOX 287 9783-816 PI 625-6245.026A LIMIT SWITCH BOX 287 9980-802 U 287 9980 EL. INST. JIB LIGHT 214 1340-801 BIB 2141340 EL. INST. JIB LIGHT 214 1340-802 BIB - SLIPRING UNIT 314 2794-801 A/ 625-8739C 9.7 EXTRA DECKLIGHT 214 1462-801 -/- 214 1462 FIRE EXTINGUISHER, MOUNT 488 8557-801 -/- 488 8557 ANTI-DAZZLING SCREEN MOUNT 287 7010-801 C/C 624-2510 RESCUE EQUIPMENT 388 2513-801 A/ - ASH TRAY 6931 4692-001 - HANDPUMP 187 7040-801 D/J 625-7452 EL. INST. JIB WARNING LIGHT 114 1036-801 A/ 114 1036-801 EL. INST. CAB WARNING LIGHT 114 1036-802 A/ 114 1036-802 EL. INST. POSITION LIGHT 114 1023-801 -/- 1141023 EL. INST. FAULT INDICATOR 214 1339-802 B/B 214 1339 EL. INST. WARNING LIGHT; YARD MOUNT. 114 0811-802 Cl 114 0811 The Original Manufacturer of HAGGLUNDS Cranes GENERAL MacGREGOR 1.005 E rev.: e 2003-09-09
You cannot post new topics in this forum You cannot reply to topics in this forum You cannot edit your posts in this forum You cannot delete your posts in this forum You cannot vote in polls in this forum You cannot attach files in this forum You cannot download files in this forum
GL 4524/4028-2S / INSTRUCTION MANUAL
Language: english
Author: MacGREGOR
Genre: INSTRUCTION MANUAL
Publisher: MacGREGOR
Format: PDF
Quality: OCR without errors
Number of pages: 366+370
Description:
Manual No. (9012-9014); CD (1 pc)
Certificate for crane issued by: GL
Certificate for foundation issued by: GL
IMO No. L9102497
Name of ship USSY SCHULTE
Newbuilding No. NB 170/1/3
Shipyard Stettin
Owners MS "USSY SCHULTE" Schiffsbetr
Project No. 230.4107-1
Mfg. No. 62503432 - Crane 1
Type of crane GL 4524/4028-2S
Mech. spec 489 4113/E
Hydr. spec 489 4112/D-Preface
This instruction manual covers the MacGREGOR Spare parts hydraulic deck crane. We hope that it will prove a General advice how to order spare parts; spare parts valuable companion to everyone concerned with the lists and illustrations, operation of the crane or otherwise in a responsible position.
Every manual belongs to a specific crane or piece of equipment. The identification can be found on the label on the manual’s back.
The manual contains nine sections. The various sections cover the following subjects:
General
Contents list; Safety; Conversion tables; Hydraulic and electric symbols.
Technical description
Technical data; description of crane design.
Function
Electric and hydraulic functions of the crane.
Operation
Operating instructions; crane operator’s checklist.
Maintenance
Lubricating chart and maintenance instructions.
Service
General service instructions for the hydraulic system, mechanical, control system and electrical equipment.
Extra equipment
Extra equipment, if any; e.g. cargo handling equipment.
Appendices
Other information, which cannot be referred to any of the above mentioned sections.
The Original Manufacturer of HAGGLUNDS Cranes MacGREGOR
General Instructions Cleanliness in Hydraulic Systems
General Instructions Cleanliness in Hydraulic SystemsThe fundamental and foremost rule in all work with hydraulic systems and components is absolute cleanliness.
Many components, e.g. valves and pumps, have very narrow tolerances, therefore microscopic impurities, invisible to the human eye, may have disastrous effect on the function of a hydraulic system.
The hydraulic system installation contains a cleaner with a cartridge designed to stop impurities produced within the hydraulic system during operation. Every care must be taken to prevent external impurities from entering the system when servicing or repairing it.
This also applies for components that have been removed and or to be reinstalled. Sooner or later, a component that has been replaced will be inspected in a test equipment somewhere. It is important that the component stays in the same condition as it was when it was removed, as it may otherwise be impossible to decide the real cause of a malfunction. It may also be possible that a component sent in for inspection is not defective at all, and will be returned.
Rules when working on the hydraulic system
The following fast rules shall be observed during working on the hydraulic system:
1. Carry out a rough general clean-up.
2. Protect the area where work shall be done. Use a sheet of plastic material or similar.
3. Clean well with white spirit or a similar solvent. Remember that it is not enough to clean only the parts immediately concerned, but also their surroundings from where accumulated dirt may be transferred in to the repair area. Do not forget to clean the tools to be used.
Use a brush for cleaning, wipe off with a non-linting rag, repeat the cleaning if necessary. Finish by spraying the area of operations - hose connections etc. - with the solvent.
4. Mount protective covers immediately after removing a component, a pipe or a hose. Components, shall also be fitted with covers and plugs in order to prevent ingress of dirt.
These covers must be kept in clean and closed packages. After use, covers are to be cleaned in the workshop.
5. Observe minute cleanliness when handling all types of quick-release connectors. Spray both connectors with solvent before making up a connection. Clean all covers before reinstallation.
Storing and filling up of hydraulic oil
1. Store barrels, hoses and pump as clean as possible and best of all in a warm room. The oil viscosity will then be considerably lower, which make the filling through filter easier.
2. Barrels, hoses and pump must be carefully handled and cleaned when necessary.
3. Store barrels horizontally, so plugs (or cocks) are below the liquid level and impurities (e.g., damped air) does not penetrate the barrels.
4. Observe minute cleanliness when filling up oil -carelessness is one of the greatest sources when impurities penetrates the hydraulic system.
5. Fill up hydraulic oil. See separate instruction.
6. Never use the last drop in the barrel, as it often consists of water and other impurities dependent on how many times the barrel has been opened.
The Original Manufacturer of HAGGLUNDS Cranes
TABLE OF CONTENTS
GENERAL 1 1.005 E e PREFACE1.009 E a GENERAL INSTRUCTIONS, CLEANLINESS IN HYDRAULIC SYSTEMS
1.102 E c CONVERSION FACTORS
1.518.1 SvED f HYDRAULIC AND ELECTRIC SYMBOLS
TECHN. DESCRIP. 2 230.4107 - TECHNICAL DATA
2.007.16 E a TECHNICAL DESCRIPTION
FUNCTION 3 3.110.34 E - HYDRAULIC FUNCTION
3.126.3 E b STARTING, STOPPING, SAFETY FUNCTIONS SINGLE CRANES
3.136.12 E - STARTING AND STOPPING SEQUENCE
3.142.1 E b CRANE CONTROL SYSTEM
OPERATION 4 PM40 1830-E b CREW CHECKLIST, BEFORE TAKING CRANE INTO OPERATION
PM40 1817-E - LOAD INDICATION
PM40 5500-E00 b OPERATING INSTRUCTION
PM40 6050-E00 b OPERATING INSTRUCTION
PM41 0011-E a EMERGENCY ESCAPE INSTRUCTIONS
4.620.1 E n PARKING THE CRANE, SEA STOWING, GENERAL INSTRUCTION
388 7888 - JIB PARKING IN WIRE ROPES (DIM. DRAWING)
4.630 E - HANDLING HATCHES BY DECK CRANE
MAINTENANCE 5 5.005.19 E c MAINTENANCE CHART
5.018 E b INSPECTION OF STRESSED COMPONENTS AND STRUCTURES
PM51 1355-E00 b LUBRICATING CHART
5.301.7 E a FILTERS
5.302.12 E b HYDRAULIC OIL TANK
5.315 E a SAMPLING OF OIL TO VERIFY THE CLEANLINESS IN HYDRAULIC SYSTEM
The Original Manufacturer of HAGGLUNDS Cranes
MacGREGOR INSTRUCTION MANUAL Project No.
Dept. C7250 Date: 2007-06-05 230.4107-1
TABLE OF CONTENTS
Page
2(4)
INSTRUCTION NO. REV NAME OF INSTRUCTION
MAINTENANCE 5
SERVICE 6
6.0
6.1
6.2
6.3
EXTRA EQUIPMENT 7 APPENDICES 8
SPARE PARTS 9
5.421.13 E
6.000 E 6.000.1 E
6.003.1 E
6.004.1 E
6.005.1 E
6.100 E 6.106 E 6.117 E 6.120.15 E 6.120.51 E 6.121 E
6.122.1 E 6.125.13 E 6.127.19 E 6.189 E
6.203.4 E 6.203.9 E 6.214 E 6.216.26 E
6.222 E
6.223 E
6.303.3 E 625/1461 E
6.305.1 E
6.307.4 E
6.311.1 E 6.320.91 E
6.321.2 E
6.990.22 E
6.990.23 E
LUBRICANTS FOR DECK MACHINERY
c HOWTO ORDER SPARE PARTS
c STATEMENT REGARDING DELIVERY OF SPARE PARTS TO SWIVELS, LIFTING 1 m GLOBAL SERVICE
az MacGREGOR GLOBAL SERVICES
c INTRODUCTION
b MEASURES BEFORE STARTING, DURING AND AFTER COMPLETED SERVICE/IV a TROUBLE SHOOTING CHART, OVERHEATING
b TROUBLE SHOOTING, PUMPS
d SLEWING GEARSET
b HYDRAULIC MOTOR
TROUBLE-SHOOTING CHART, HYDRAULIC MOTORS e HYDRAULIC MOTORS, SERIES 63, 64 AND 84
a FEED PUMP UNIT
b HIGH PRESSURE PUMPS
f HYDRAULIC PISTON ACCUMULATORS
d BRAKES FOR WINCHES WITH LOW-SPEED HYDRAULIC MOTORS SERIES 63 M
c BRAKES FOR WINCHES WITH LOW-SPEED HYDRAULIC MOTORS SERIES 84
i TIGHTENING TORQUES STUDS/SCREWS AND BOLTS
c ROPE REEVING DIAGRAM FOR CRANES TYPE G-2 AND GL-2
a HANDLING AND CHECKING STEEL WIRE ROPES
d REPLACEMENT OF WIRES, 1- OR 2-ROPE CRANES
ELECTRONIC TROUBLE SHOOTING f EMERGENCY OPERATION BOARDS
b ELECTRICAL EQUIPMENT, GENERAL MAINTENANCE
d SLIP-RING UNIT, REMOVAL AND INSTALLATION, SINGLE
a OIL LEVEL FLOAT SWITCH AND OVERHEATING PROTECTOR
LIMIT SWITCHES IN HOISTING AND LUFFING WINCH SYSTEMS a SLACK WIRE SAFETY SWITCH HOISTING AND LUFFING WINCHES
b EMERGENCY BRAKE RELEASE IN CASE OF MAIN PUMP UNIT FAILURE
d EMERGENCY BRAKE RELEASE IN CASE OF COMPLETE POWER FAILURE, ..
SEE SEPARATE TABLE OF CONTENTS
The Original Manufacturer of HAGGLUNDS Cranes
MacGREGOR PARTS MANUAL Project No.
Dept. C7250 Date: 2007-06-05 230.4107-1
TABLE OF CONTENTS
Page
3(4)
GROUP DESCRIPTION PART NUMBER FIG
9
HOWTO ORDER SPARE PARTS c 6.000 E
HOISTING WINCH, C 388 5376-801 D / 625-1096
HYDRAULIC MOTOR, SERIES 84 078 0040-803 M/F 625-1200D
LUFFING WINCH, C 388 5377-801 D / 625-2201
HYDRAULIC MOTOR, SERIES 64 178 1322-401 FI 625-1242B
SLEWING GEAR 287 9304-801 -1 625-3248D
HYDRAULIC MOTOR 388 3127-801 HI 625-1203C
BRAKE ASSEMBLY, C 178 0373-801 M/M 625-4130H
BRAKE ASSEMBLY 178 1494-802 D/D 625-4133C
BRAKE CYLINDER, C 178 1301-802 C/C 625-4348C
BRAKE CYLINDER 388 1656-801 Cl 625-4492B
PARKING LOCK 187 6032-801 DID 625-4489
PUMP UNIT 187 8020-801 C/C 625-5113A
FEED PUMP UNIT 388 0364-801 H/H 625-5176C
OIL COOLER 287 6954-801 D/D 625-5735G
TANDEM ASSEMBLY KIT 388 5167-801 FI 625-4963B
OIL TANK 187 7554-801 HI 625-5850D
MECHANICAL EQUIPMENT 187 8340-801 C/C 625-5873
SLEWING RIM MOUNT 388 6579-801 -/ 388 6579
SLEWING RIM 287 9036-801 A/ 287 9036
SLEWING RIM YARD MOUNTING 388 5036-801 -/ 388 5036
SLACK WIRE SWITCH 287 7355-803 D/D 625-6214C
SLACK WIRE SWITCH 287 8166-801 C/- 625-6213C
LIMIT SWITCH 5661 4116-512 U- -
LIMIT SWITCH 5661 4125-511 u- -
CRANE JIB WITH BEARING 287 9959-801 N 625-6254
INCLINOMETER, C 388 0176-801 B/B 625-6509A
CAB 287 9188-802 D/D 625-6523A
LIFTING EQUIPMENT, C 388 7686-801 -/ 625-7007
WIRE ROPE, HOIST; SEE TECHNICAL DATA 389 0850-831 U- -
WIRE ROPE, LUFFING; SEE TECHNICAL DATA 388 3261-824 XI -
HYDRAULIC CIRCUIT DIAGRAM 187 8366 -IB 187 8366
HYDRAULIC TUBING, COOLER 388 1638-818 Y/EE 388 1638
UNLOADING UNIT 388 3576-801 B/B 625-7291C
FLUSHING VALVE 388 3579-801 F/F 625-7287C
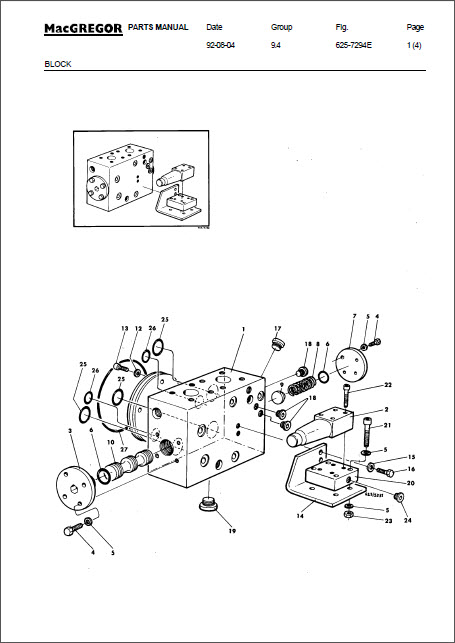
BLOCK 187 5228-801 Ul 625-7294E
MAGNETIC PLUG, C 488 7088-801 -1 625-7316A
PRESSURE SWITCH, C 387 7053-806 Ul 625-7446A
PRESSURE SWITCH, C 387 7053-801 K/K 625-7441B
PRESSURE SWITCH, C 388 0359-801 B/B 625-7447
DIRECTION VALVE 287 5950-801 U 625-7508C
DIRECTION VALVE 287 5949-801 HI 625-7509B
FILTER ELEMENT 489 3104-001 A/ -
FILTER UNIT INLET, C 187 7343-801 D/D 625-7312
FILTER UNIT OUTLET, C 187 7344-801 D/D 625-7313
The Original Manufacturer of HAGGLUNDS Cranes
MacGREGOR PARTS MANUAL
Date: 2007-06-05
Dept. C7250
Project No.
230.4107-1
TABLE OF CONTENTS
Page
4(4)
GROUP DESCRIPTION PART NUMBER FIG
9.4 ACCUMULATOR 388 0362-801 / 625-7951F
HYDRAULIC HOSES 625-7970G
9.5 EL. BLOCK DIAGRAM 314 3221 -/ 314 3221
EL. CIRCUIT DIAGRAM 314 3222 -/ 314 3222
EL. COMPONENT LIST 414 5964 /- 414 5964
EL. CENTRAL 214 1615-801 -/- 214 1615
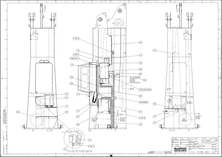
EL. INSTALLATION 114 1038-801 A/A 1141038
POWER SUPPLY CE,C 314 2114-802 GIG 625-8560A
EL. INSTALLATION, CAB 114 1030-801 Cl 1141030
CONTROL PANEL 214 1212-801 B / 214 1212
CONTROLLER, HOISTING 314 2005-802 D / 625-8591C
CONTROLLER, LUFFING/SLEWING 314 2006-802 D / 625-8592C
EL. INST. CAB FORCE LIMIT 114 1037-802 -/ 1141037
CUBICLE B, ASSY 314 2669-813 N/N 314 2669
CUBICLE B 214 1359-802 E/E 625-8011
FRAME CUBICLE B 214 1224-803 -IB 625-8012
CUBICLE A 214 1616-801 -/- 214 1616
COMPL. CUBICLE A 314 3161-801 -/ 3143161
LIMIT SWITCH BOX, MOUNTING 388 3380-801 -/- 625-7020.001
LIMIT SWITCHES BOX 287 9783-816 PI 625-6245.026A
LIMIT SWITCH BOX 287 9980-802 U 287 9980
EL. INST. JIB LIGHT 214 1340-801 BIB 2141340
EL. INST. JIB LIGHT 214 1340-802 BIB -
SLIPRING UNIT 314 2794-801 A/ 625-8739C
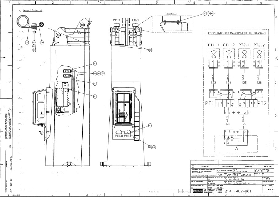
9.7 EXTRA DECKLIGHT 214 1462-801 -/- 214 1462
FIRE EXTINGUISHER, MOUNT 488 8557-801 -/- 488 8557
ANTI-DAZZLING SCREEN MOUNT 287 7010-801 C/C 624-2510
RESCUE EQUIPMENT 388 2513-801 A/ -
ASH TRAY 6931 4692-001 -
HANDPUMP 187 7040-801 D/J 625-7452
EL. INST. JIB WARNING LIGHT 114 1036-801 A/ 114 1036-801
EL. INST. CAB WARNING LIGHT 114 1036-802 A/ 114 1036-802
EL. INST. POSITION LIGHT 114 1023-801 -/- 1141023
EL. INST. FAULT INDICATOR 214 1339-802 B/B 214 1339
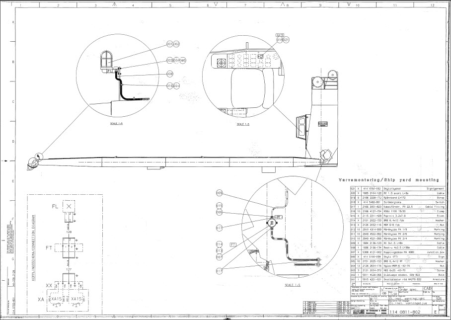
EL. INST. WARNING LIGHT; YARD MOUNT. 114 0811-802 Cl 114 0811
The Original Manufacturer of HAGGLUNDS Cranes
GENERAL
MacGREGOR
1.005 E rev.: e 2003-09-09
Macgregor Crane1_GL4524_4028-2S
Download [12 KB]
Share
Share
Share
Share
Share
Share