vitbar192 ®   14-Oct-2021 11:22

Традиционное судостроение как часть культурного наследия народов России. Т.1


Год выпуска: 2021
Язык: русский
Автор: Окороков А.В. (ред.)
Жанр: История
Издательство: Институт Наследия
ISBN: 978-5-86443-345-4
Формат: PDF
Качество: Изначально компьютерное (eBook)
Количество страниц: 558
Описание: Народное или традиционное судостроение — это область культуры, связанная с изготовлением средств передвижения по воде на основе технологий, знаний и опыта, передаваемых по традиции из поколения в поколение. Являясь важной составляющей народной жизни и воплощая опыт, накопленный веками, народное судостроение представляет собой интересное явление с точки зрения как истории судостроения и судоходства, так и этнографии, социологии, философии и культуры.
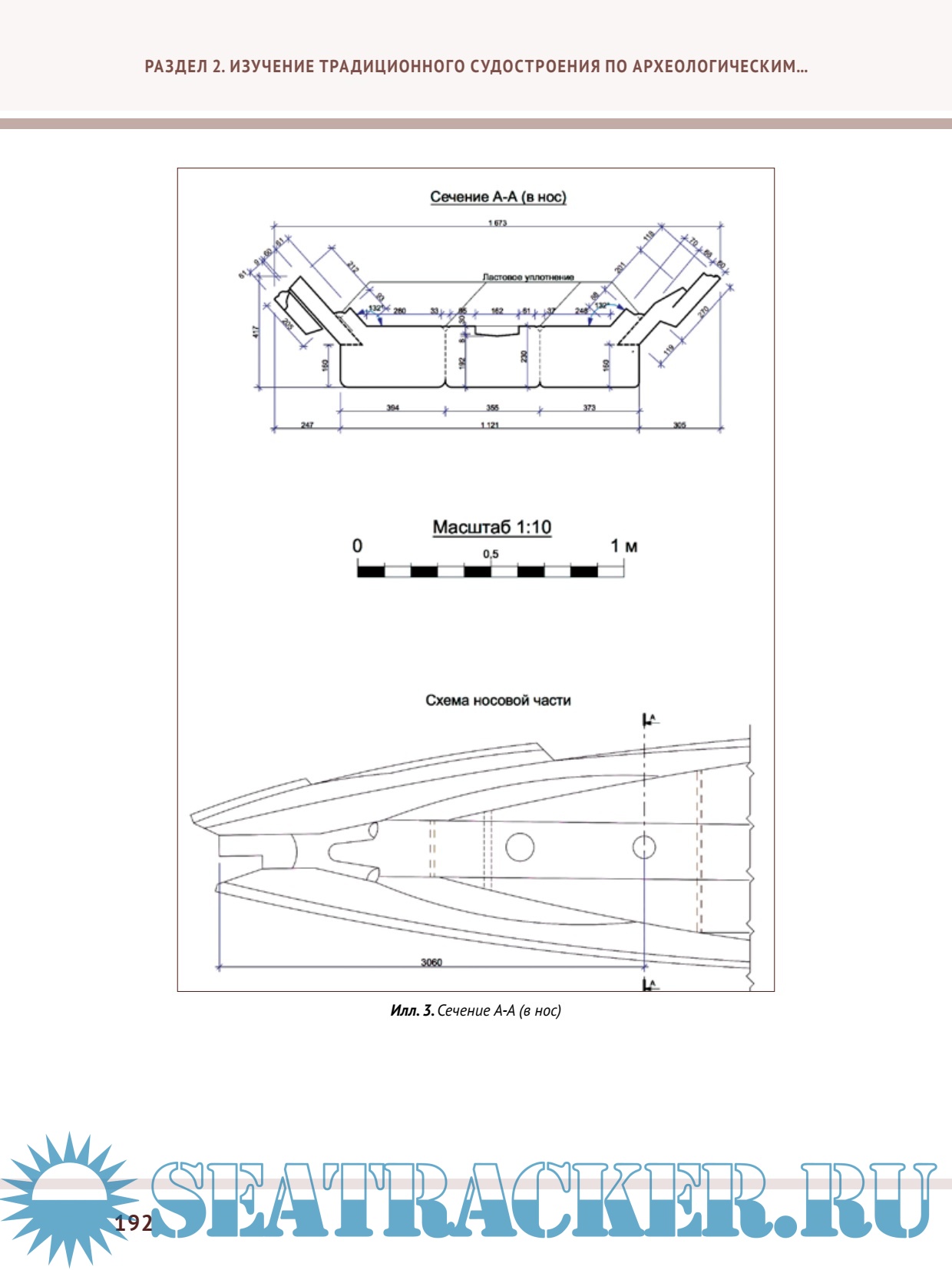
В данном труде рассматривается значительный объем археологического и этнографического материала по судостроению древнего Новгорода, Приладожья, Прионежья, Окского бассейна, Нижегородского Поволжья, Русского Севера, Центральной части России. Описываются истоки и развитие традиционного судостроения, пути его трансформации в зависимости от условий эксплуатации судов, сложившихся в регионах России. Анализируются конструктивные особенности судов по изобразительным источникам. На обширном эмпирическом материале показывается, что традиционное судостроение в целом является частью гибкой системы «культура» и обладает всеми главными чертами последней.
Книга рассчитана на специалистов, занимающихся изучением истории русского судостроения и судоходства, и всех, кто интересуется данной проблематикой.

Содержание

Скриншоты

Окороков А.В. Традиционное судостроение России. Т.1, 2021.pdf

Download [11 KB]

Thank U
Reply
refresh list

Similar releases

Традиционное судостроение как часть культурного наследия народов России. Т.2 - Окороков А.В. (ред.)…
Очерки по истории судоходства уральских казаков - Курноскин С. П., Филин П. А. [2024, PDF]
Традиционное судостроение как часть культурного наследия народов России. Т.3 - Традиционное…
Свод объектов подводного культурного наследия России т.4 - Окороков А. [2020, PDF/DOC]
Судостроительная традиция допетровской Руси по изобразительным источникам - Мадикова Лидия…
Морское дело в античных государствах Северного Причерноморья - Б. Г. Петерс [1982, PDF]
Свод объектов подводного культурного наследия России т.1 - Окороков А. [2016, PDF]
Свод объектов подводного культурного наследия России т.3 - Окороков А. [2019, PDF]
Свод объектов подводного культурного наследия России т.2 - Окороков А. [2018, PDF]
Плавучие буровые платформы. Конструкция и прочность - Галахов И. Н. и др. [1981, PDF]
LOAD MORE
  • Reply

The time now is: Today 09:12

All times are GMT + 3 Hours