virtual ®   10-Nov-2018 23:50

MGN 587+595 (F) ILO work in fishing convention health and safety responsibilities of fishing vessel + provision of food and water


Year: 2018
Language: english
Author: MCA
Genre: Convention (rules)
Format: PDF
Quality: eBook
Pages count: 28
Description: The Merchant Shipping and Fishing Vessels (Health and Safety at Work) Regulations 1997 (as amended1) (“the Regulations”) cover the work activities of anyone working on fishing vessels, regardless of their employment status. Employed fishermen and self-employed share fishermen are all protected by the International Labour Organisation Work in Fishing Convention (ILO 188), and the fishing vessel owner has responsibilities towards anyone working on their vessel. The sections of the Regulations which all fishing vessels must now comply with are set out in this notice.
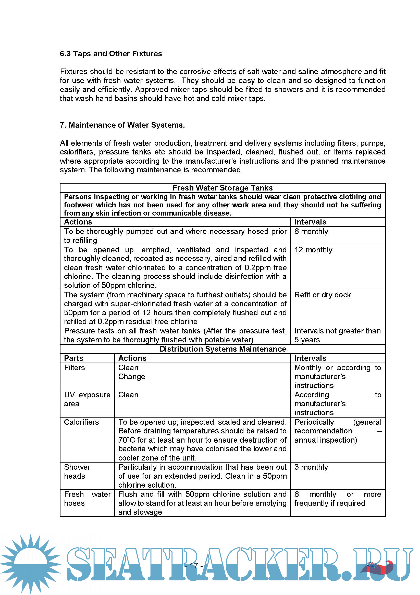
In providing food and drinking water on board ship, account should be taken of factors including the duration and nature of the voyage; the number of crew on board; and the quantity, nutritional value, quality and variety of the food. The religious requirements and cultural practices of the crew as they relate to food should also be taken into account.

Contents

MGN_587_F_ILO_work_in_fishing_convention_health_and_safety_responsibilities_of_fishing_vessel_owners__managers__skippers_and_fishermen
MGN_595_F_ILO_work_in_fishing_convention_provision_of_food_and_water

Screenshots

MGN_587+595

Download [1 KB]

Thank U
Reply
SerTan   11-Nov-2018 00:33
Dear virtual2017, pls correct the TITLE. It should be in separate words, but not connected in the line with underline character)
4
Reply
refresh list

Similar releases

MSN (F)1882, 1884, 1885,1891 – ILO work in fishing convention minimum age, working time, survey and…
Maritime Labour Convention, 2006 Work in Fishing Convention, 2007 (ILO No. 188) Medical Examination…
A Master's Guide to the UK Flag - MCA [2017, PDF]
Safety Signs and Signals | MGN 556 (M+F) Amendment 1 - Maritime & Coastguard Agency (MCA) [2022,…
Health and Safety – a Guide for Mariners - Maritime New Zeland [201x, PDF]
Human Element Guidance | MGN505 Amendment 1 - MCA [2021, PDF]
Maritime Labour Convention 2006, as Ammended 2022 [2024, PDF]
Ship Sanitation, Health and Hygiene | An Approach to Better Welfare for Modern Seafarers - Fidaa…
Fishermen's Safety Guide, A guide to safe working practices and emergency procedures for…
Maritime Labour Convention 2006 (Including 2016 amendments) - Internatioanl Labour Conference…
LOAD MORE
  • Reply

The time now is: Today 22:22

All times are GMT + 3 Hours